218平大平层,在进门设淋浴间?
大部分人都觉得房子面积越大越好设计,因为空间宽敞,怎么规划都方便。但实际是,大房子如果没有设计好动线,不管做什么事情,都很容易多花一倍的时间。所以空间越大的房子,越重要的是,东西要用的时候,要在手边。空间功能划分要明确。
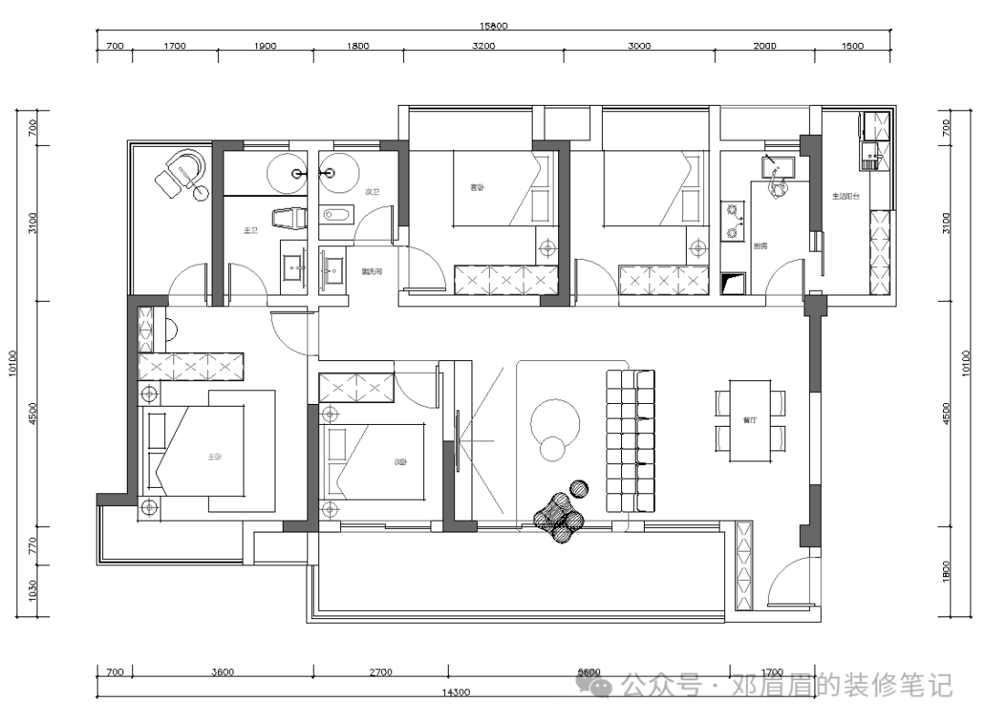
我们先看原始户型

对比改造后的方案,原始户型厨房空间狭小,甚至无法在厨房内容纳冰箱;房间虽然多,但是客餐厅空间看起来却面积不大,和一百多平的常规户型没有太大区别。改造后利用一个房间,扩大厨房,实现餐厨一体,可以满足家人日常的用餐需求。客厅预备了书房+会客餐厅的双功能比较独特的是,在生活阳台设立了淋浴房,上班回家之后,可以立马洗澡,换上舒适的家居服,给自己换一个舒服的状态,宅家。同时紧靠洗衣服,可以顺手就把衣服丢进洗衣机,实现家务动线最短化。
主卧虽然有一个阳台,但是并不算宽敞,实用性也不强,所以利用靠近卫生间这个特性,把原本的卫生间改成了衣帽间,增加主卧的收纳,可以实现男女主人的衣柜分区。不过这里注意,施工一定要提前和马桶商家,以及专业的设计师,工长沟通,否则容易出错。(ps:这个户型的飘窗并不能拆除,ai出图容易出错,调整过于麻烦,不影响我们看方案的设计思路,所以有些细节就没有再去调整。如果要借鉴,一定要咨询我们再施工哦~)
常规的设计,就是像最后这个方案一样,要么不用主卧的阳台,要么改成衣帽间,不过改成衣帽间,有点浪费阳台的采光,而且柜子全背靠窗户,柜子也容易褪色变形,所以就改成了卫生间。
免责声明:凡注明稿件来源的内容均为转载稿或由企业用户注册发布,本网转载出于传递更多信息的目的;如转载稿和图片涉及版权问题,请作者联系我们删除,同时对于用户评论等信息,本网并不意味着赞同其观点或证实其内容的真实性。




